Details

Brookline, MA: Owned by the same family for many years, this well-maintained circa-1900 Colonial Revival/Victorian is set in the heart of the vibrant Coolidge Corner neighborhood. Classic architectural details include original millwork, high ceilings, hardwood floors, leaded stained-glass windows, and multiple fireplaces. A rebuilt front porch enhances the home’s historic character. The house is set on a tranquil 6,385 square foot level and fenced lot and includes a detached 1 car garage. There is a finished third floor that has kitchenette, full bathroom, large living room, 2 bedrooms and central A/C. Located in the highly rated F. Ridley School district and just moments from Coolidge Corner shops, restaurants, and public transportation, this well-preserved property affords easy access to The Longwood Medical Area, Boston University, and Downtown Boston. It presents an excellent upside opportunity for an end user or developer in one of Brookline’s most desirable neighborhoods. The property is Zoned T-5 (N-H) offering potential for two units and a possible ADU (buyer to verify).

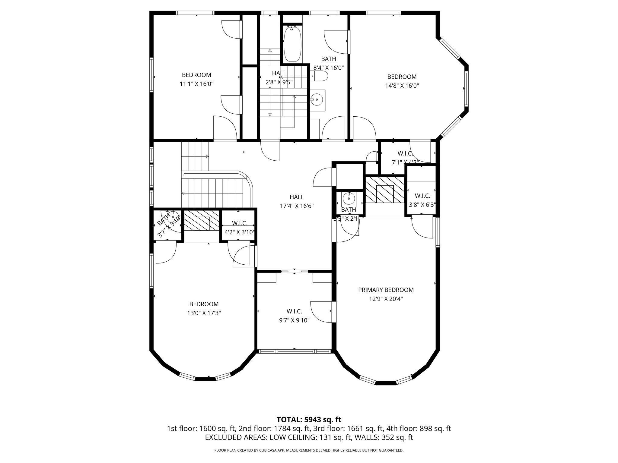
  • $2,700,000
  • 6 Bedrooms
  • 3 Bathrooms
  • 4,605 Sq/ft
  • Lot 0.15 Acres
  • 4 Parking Spots
  • Built in 1900

Images

Videos

Floor Plans